摘要:本文通過對鋁型材擠壓模具設計的係統分析,找出鋁合金型材模具設計的規律,合理布置模孔,增加平衡模孔,並結合實際生產(chan) ,解決(jue) 金屬流動不均勻性和模具強度兩(liang) 大問題,擠壓出斷麵幾何尺寸符合用戶要求的產(chan) 品,實踐證明,設計的擠壓模具結構合理才能獲得首檢合格、壽命長等,因為(wei) 隻有通過對所設計的擠壓模具圖經過係統分析,才能確定其性能是否滿足設計要求。另外根據在模具設計中經常遇見的問題總結了二級焊合、二級導流的作用。
1前言
近年來,隨著我國大規模的基建投資和工業(ye) 化進程的快速推進,鋁型材全行業(ye) 的產(chan) 量和消費量迅猛增長,而我國也一躍成為(wei) 世界上最大的鋁型材生產(chan) 基地和消費市場。經過長達近10年的高速增長,我國鋁型材行業(ye) 步入了新的發展階段,並展現出了諸多新的發展趨勢。而且隨著建築,交通、工業(ye) 、汽車以及太陽能和LED等產(chan) 業(ye) 的迅速發展,對鋁合金擠壓產(chan) 品的高精度、高性能要求與(yu) 日俱增,型材斷麵形狀隨之複雜化、多樣化,按常規常見形式設計,存在許多不足,所以要得到優(you) 質型材,就得在生產(chan) 、生活中不斷地學習(xi) 、積累、不斷地改造和創新,模具設計是重要環節,因此須對擠壓型材模具設計的進行係統分析,並通過生產(chan) 實踐逐步解決(jue) 問題。
2 模具設計的六大要點
2.1 鋁擠壓件的尺寸分析
擠壓件的尺寸及偏差是由模具、擠壓設備和其他有關(guan) 工藝因素決(jue) 定的。其中受模具尺寸變化的影響很大,而影響模具尺寸變化的原因有模具的彈性變形、模具的升溫、模具的材料及模具的製造精度和模具磨損等。
2.1.1鋁型材擠壓機噸位的選擇
擠壓比是以數值表示模具實現擠壓的難易,一般來說擠壓比在10~150之間是可適用的。擠壓比低於(yu) 10,產(chan) 品機械性能低;反之擠壓比過高,產(chan) 品容易出現表麵粗糙或角度偏差等缺陷。實心型材常推薦擠壓比在30左右,中空型材在45左右。
2.1.2外形尺寸的確定
擠壓模具的外形尺寸是指模具的外圓直徑和厚度。模具的外形尺寸由型材截麵的大小、重量和強度來確定。
2.2 擠壓模具尺寸的合理計算
計算模孔尺寸時,主要考慮被擠壓鋁合金的化學成分、產(chan) 品的形狀、公稱尺寸及其允許公差、擠壓溫度以及在此溫度下模具材料與(yu) 被擠壓合金的線膨脹係數,產(chan) 品斷麵上的幾何形狀的特點及其在拉伸矯直時的變化,擠壓力的大小及模具的彈性變形等因素。
對於(yu) 壁厚差很大的型材,其難於(yu) 成形的薄壁部分及邊緣尖角區應適當加大尺寸。對於(yu) 寬厚比大的扁寬薄壁型材及壁板型材的模孔,桁條部分的尺寸可按一般型材設計,而腹板厚度的尺寸,除考慮公式所列的因素外,尚需考慮模具的彈性變形與(yu) 塑性變形及整體(ti) 彎曲,距離擠壓筒中心遠近等因素。此外,擠壓速度,有無牽引裝置等對模孔尺寸也有一定的影響。
2.3 合理調整金屬的流動速度
所謂合理調整就是在理想狀態下,保證製品斷麵上每一個(ge) 質點應以相同的速度流出模孔。盡量采用多孔對稱排列,根據型材的形狀,各部分壁厚的差異和比周長的不同及距離擠壓筒中心的遠近,設計不等長的定徑帶。一般來說,型材某處的壁厚越薄,比周長越大,形狀越複雜,離擠壓筒中心越遠,則此處的定徑帶應越短。當用定徑帶仍難於(yu) 控製流速時,對於(yu) 形狀特別複雜,壁厚很薄,離中心很遠的部分可采用促流角或導料錐來加速金屬流動。相反,對於(yu) 那些壁厚大得多的部分或離擠壓筒中心很近的地方,就應采用阻礙角進行補充阻礙,以減緩此處的流速。此外,還可以采用工藝平衡孔,工藝餘(yu) 量或者采用前室模、導流模、改變分流孔的數目、大小、形狀和位置來調節金屬的流速。
2.4 保證足夠的模具強度
由於(yu) 擠壓時模具的工作條件十分惡劣,所以模具強度是模具設計中的一個(ge) 非常重要的問題。除了合理布置模孔的位置,選擇合適的模具材料,設計合理的模具結構和外形之外,精確地計算擠壓力和校核各危險斷麵的許用強度也是十分重要的。目前計算擠壓力的公式很多,但經過修正的別爾林公式仍有工程價(jia) 值。擠壓力的上限解法,也有較好的適用價(jia) 值,用經驗係數法計算擠壓力比較簡便。至於(yu) 模具強度的校核,應根據產(chan) 品的類型、模具結構等分別進行。一般平麵模具隻需要校核剪切強度和抗彎強度。舌型模和平麵分流模則需要校核抗剪、抗彎和抗壓強度,舌頭和針尖部分還需要考慮抗拉強度等。強度校核時的一個(ge) 重要的基礎問題是選擇合適的強度理論公式和比較精確的許用應力。近年來,對於(yu) 特別複雜的模具可用有限元法來分析其受力情況與(yu) 校核強度。
2.5 工作帶寬度尺寸
確定分流組合模的工作帶要比確定半模工作帶複雜得多,不僅(jin) 要考慮到型材壁厚差,距中心的遠近,麵且必須考慮到模孔被分流橋遮蔽的情況。處於(yu) 分流橋底下的模孔,由於(yu) 金屬流進困難,工作帶必須考慮減薄些。在確定工作帶時,首先要找出在分流橋下型材壁厚最薄處即金屬流動阻力最大的地方,此處的最小工作帶定為(wei) 壁厚的兩(liang) 倍,壁厚較厚或金屬容易達到的地方,工作帶要適當考慮加厚,一般按一定的比例關(guan) 係,再加上易流動的修正值。
2.6 模孔空刀結構
模孔空刀就是模孔工作帶出口端懸臂支承的結構。型材壁厚t≥2.0mm時,可采用加工容易的直空刀結構;當t<2mm時,或者帶有懸臂處可用斜空刀。
3 模具設計中常見問題及實例
3.1 二級焊合室的作用
擠壓模具在鋁型材擠壓生產(chan) 中起到至關(guan) 重要的作用,直接影響擠壓產(chan) 品的質量。然而在實際生產(chan) 中,擠壓模具的設計更多依賴設計師的經驗,模具設計質量難以保證,需要多次試模和修模。根據模具設計的不足,提出在下模開設二級焊合室優(you) 化設計方案,彌補模具加工中打供料不到位的缺陷,避免了供料不足引起的開口、收口及出材前後形狀不一等缺陷,並有效地解決(jue) 了設計中速度分布不均的問題。從(cong) 而在優(you) 化方案中,型材截麵上的溫度分布和應力分布更加均勻,對出材有較大改善。模具設計如圖1所示:

圖 1
3.2 二級導流的作用
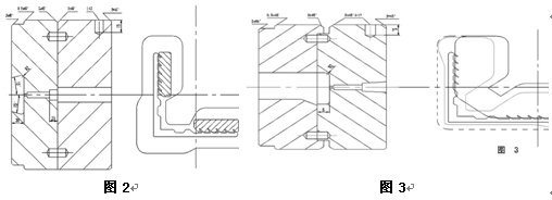
在擠壓模具設計中,對於(yu) 壁厚差很大的實心型材,二級導流。例:初始模具設計由普通的模子和模墊組成,設計如圖2所示:第一次上機非常不理想,角度偏小、薄壁部分尺寸超薄、超小。模具返修即使加大薄壁部分、打低工作帶仍然不理想。針對初始模具設計的不足,第二次采用導流板設計,提出在模子開設二級導流優(you) 化設計方案,有效地解決(jue) 了初始模具設計中速度分布不均的問題。具體(ti) 通過對薄壁部導流直衝(chong) ,厚壁部分在出料口寬展30度,並將厚壁部分模孔尺寸稍微加大尺寸,另將模孔尺寸90度角預收口開為(wei) 91度,定徑工作帶也適當作了些修改。設計如圖3所示:2號模第一次上機基本合格。

4 小結
經過不斷的學習(xi) 、積累,不斷的查詢相關(guan) 的模具設計資料,經過改造、創新來優(you) 化模具設計,並通過生產(chan) 實踐來驗證是否成功。
轉載請注明出處。







相關文章
熱門資訊
精彩導讀



















關注我們

